Hotels & mehr

Hotels & mehr

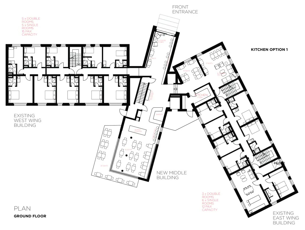
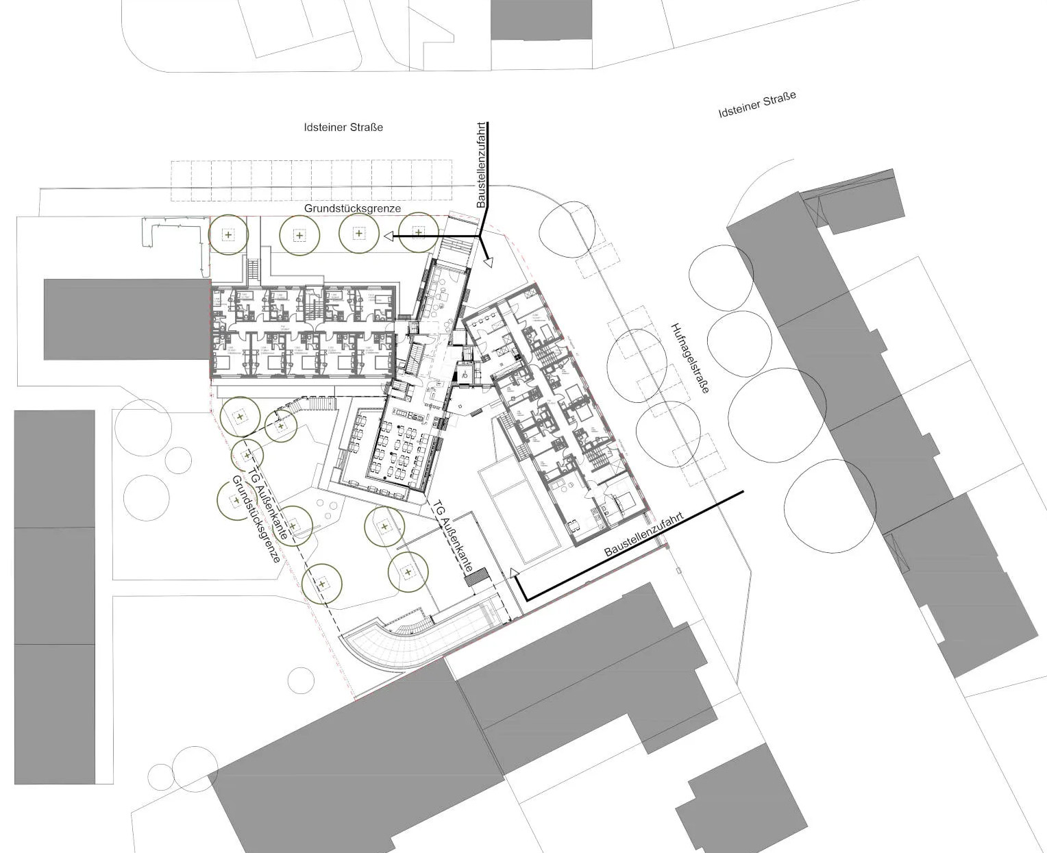
In diesem Projekt in Frankfurt wurde die beiden solitären Hotelkomplexe miteinander verbunden. Gleichzeitig erfolgt hiermit eine Umstrukturierung des Hotelbetriebs, da im Erdgeschoss nun eine großzügige Lobby mit Empfang untergebracht ist, von welcher die Gäste trockenen Fußes in Ihre Zimmer gelangen können. Ebenfalls wurde eine Tiefgarage im Innenhof generiert, um die angespannte Parksituation zu entzerren.

Auf dem Deck der Tiefgarage entsteht nun ein Außenbereich, welcher durch den ebenfalls neu geschaffenen Frühstücksbereich im Erdgeschoss erschlossen werden kann.

WHAT

Hotel & Boardinghaus

WHERE

Deutschland
Hessen - Frankfurt

WHEN

Planung und Realisierung
ab 2021

COSTS

Baukosten 8,5 Mio. €