Konzeption & Planung in Freiburg

Konzeption & Planung in Freiburg

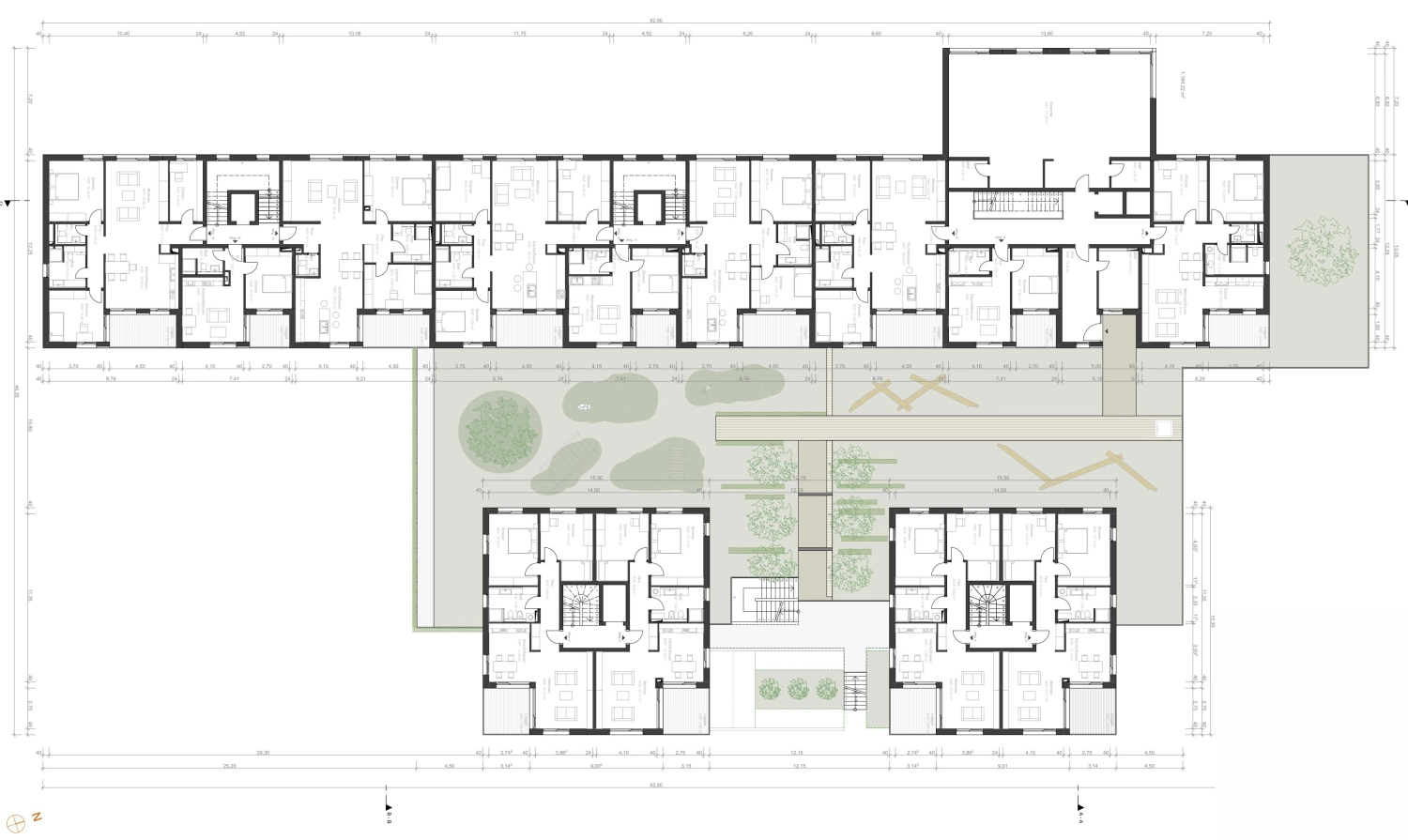
Auf dem Gelände einer ehemaligen Tankstelle erfolgte hier die Planung und Umsetzung eines Wohnquartiers mit 3 Gewerbeeinheiten sowie 84 Eigentums-Wohnungen und einer zweistöckigen Tiefgarage an markanter Stelle in Freiburg. Das Quartier besteht aus einem Riegel entlang der Hauptausfallstraße sowie im rückwärtigen Bereich aus 2 Einzelhäusern, welche durch die Tiefgarage und den geschaffenen Innenraum auf der Decke des Bio Marktes im Erdgeschoss verbunden sind.

WHAT

Wohnanlage mit 84 Apartments und 3 Gewerbeeinheiten

WHERE

Deutschland
Baden-Württemberg
Freiburg

WHEN

Konzept und Planung
2016 - 2018

COSTS

Baukosten 31 Mio. €