Individuelle Hausplanung

Individuelle Hausplanung

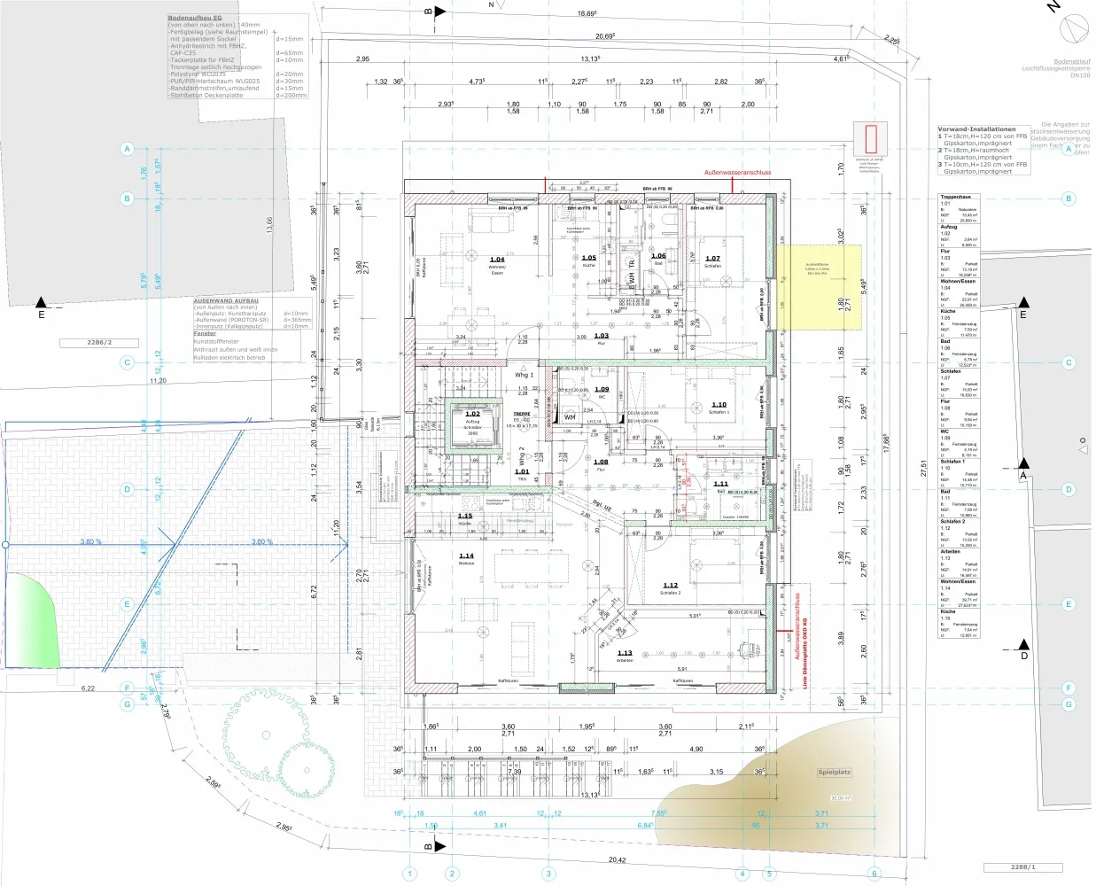
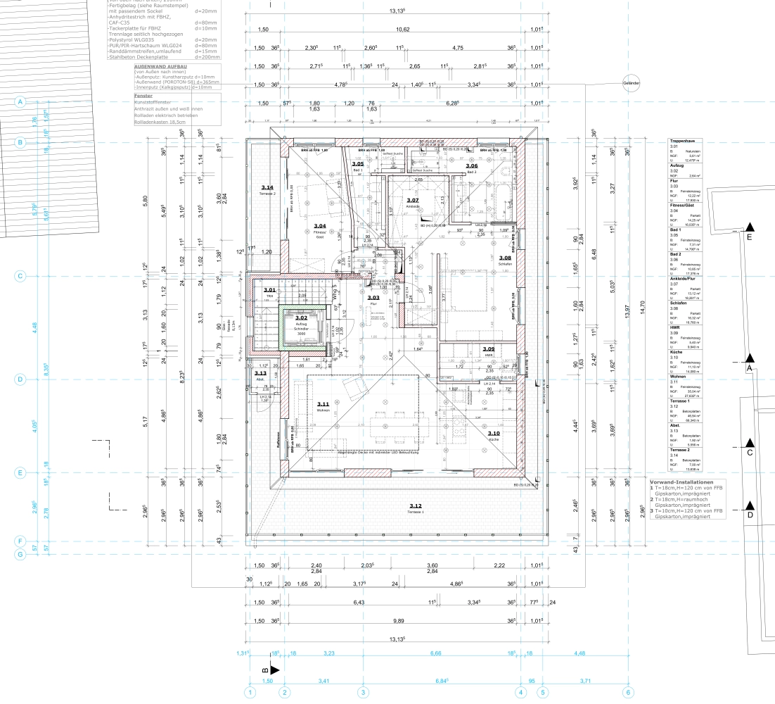
Was ist individuelle Hausplanung genau? Das Bauen nach individuellem Bauplan hat zum Ziel, die Wohnwünsche und -bedürfnisse der Bauherrenfamilie detailgetreu zu erfüllen. Nach Abriss eines kleinen Fertighauses in Villenlage in Baden-Baden entsteht hier aktuell ein modernes 5Familienwohnhaus mit großer Tiefgarage, barrierefreiem Zugang und Aufzug sowie hochwertiger Ausstattung las Nachverdichtung des Grundstücks.

WHAT

Luxus Residence mit 5 Apartments

WHERE

Deutschland
Baden-Württemberg
Baden-Baden

WHEN

Planung und Realisierung
ab 2022

COSTS

Baukosten 2,7 Mio. €